Home
同一性と差異に着目した反復表現
山田隆介
2023
修士設計
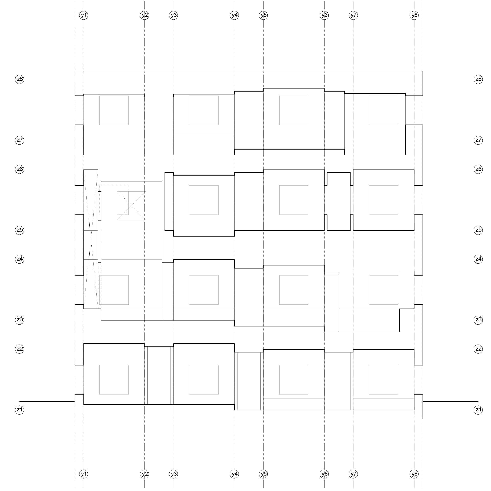
本研究は空間の比較を促す反復表現を試みるものである。単位空間の間に伸縮可能な緩衝空間を設け、室間の距離や開口等の隣室関係により室の特徴が決まる住宅を設計した。
Back to All