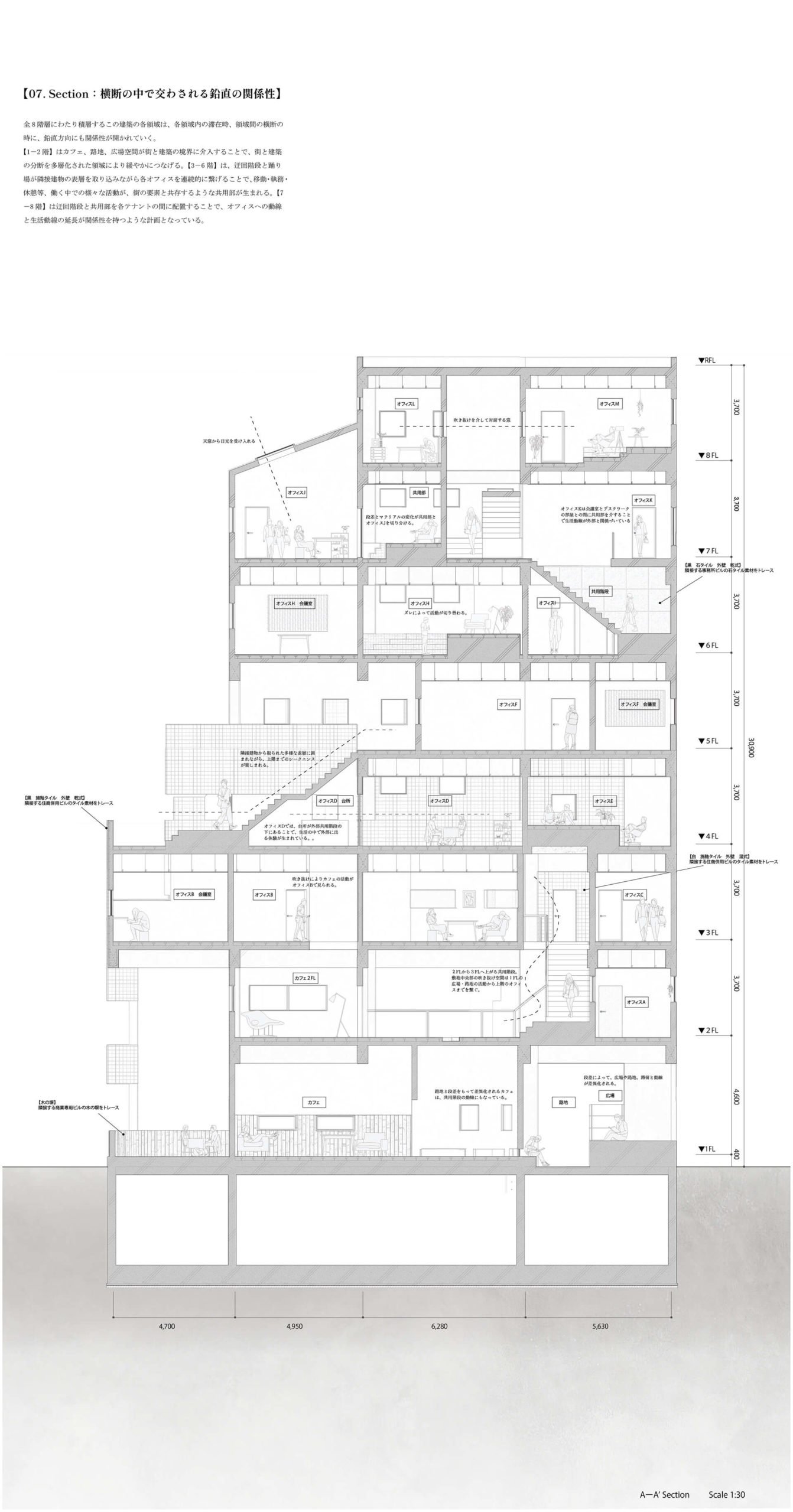
Home
横断の建築 -空間要素の表層と形態に着目したオフィスビルにおける領域の多層化-
和泉大雅
2023
修士設計
想定された行為に縛られた場所から解放され、人やモノが移り変わりながらその時々に適した場所が彩られる時、オフィスビルは都市の総体を映し出すものとして見えてくる。
Back to All