Home
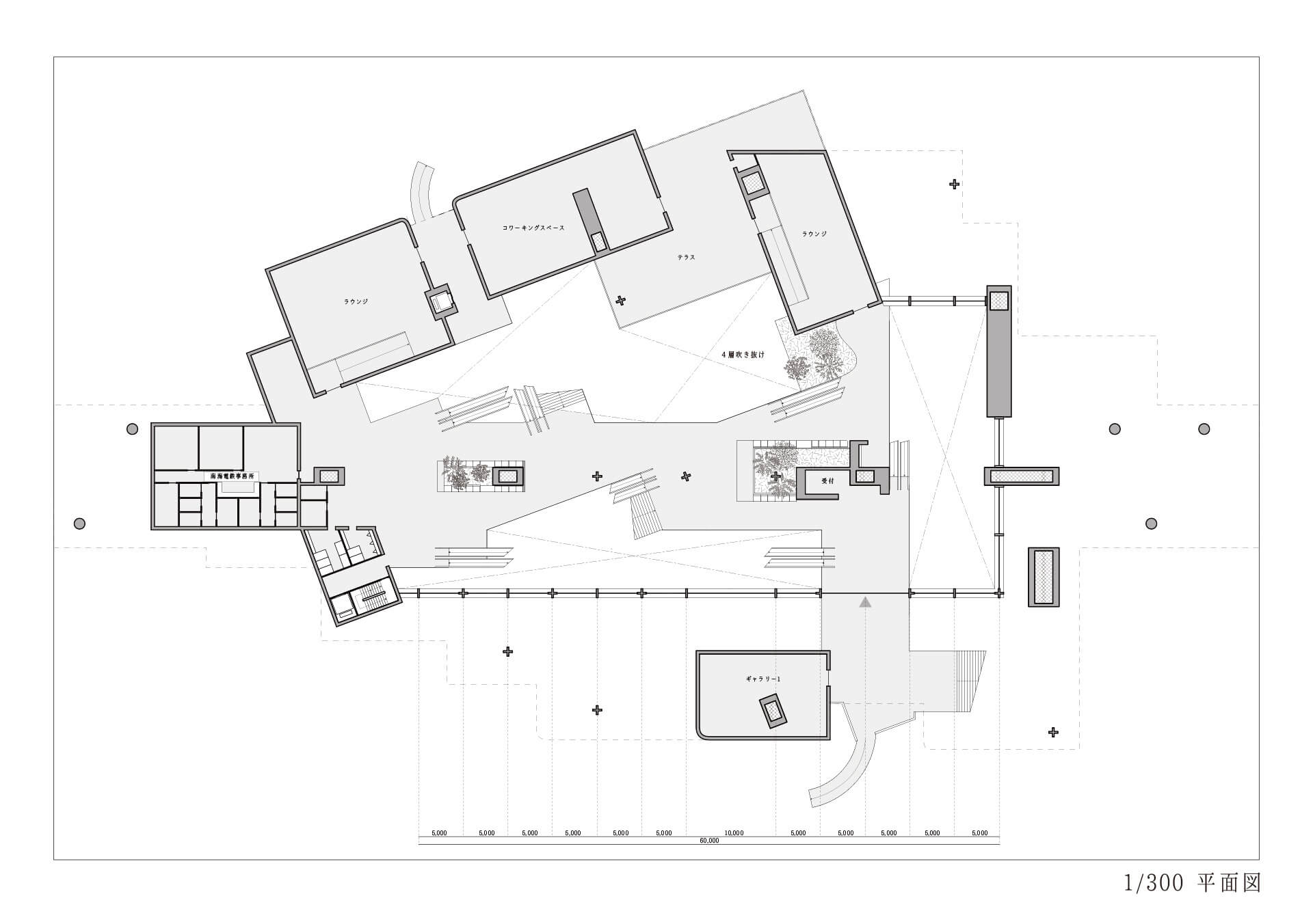
駅という地形 -ボリュームの削り出しによる建築・土木・環境・交通の統合手法の提案-
佐古統哉
2025
修士設計
ボリュームからヴォイドを削る操作により駅を作る。それはマクロな意味で環境装置として機能しつつ、ミクロな人間の居場所がある、新たな「地形としての駅」である。
Back to All